Приміщення і Споруди в Дніпропетровську
Приміщення в новому ТРЦ, Червона лінія, окремий вхід Під чистовий ремонт в Дніпропетровську
- 29.09.2025, 17:47
- Україна, Дніпропетровськ
Просмотров : 21
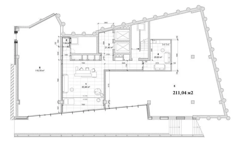
Приміщення в новому ТРЦ, Червона лінія, окремий вхід
Під чистовий ремонт (канікули на заїзд довгі). Гарний автомобільний трафік, новий район
Вода, каналізація, Електрики 40 кВт, 380 В
115 м2 і 211 м2
Ціна оренди 15 доллм2 + 2.5 експлуатація долл м2 + коммун
093 47 15 722
050 63 49 895, Телефонуйте
Комісія АН 50%
Дії з оголошенням #1747032
Поділіться з друзями і знайомими
Поділіться оголошенням Приміщення в новому ТРЦ, Червона лінія, окремий вхід Під чистовий ремонт з друзями, знайомими, потенційними клієнтами, використовуйте для цього соціальні мережі, месенджери. Це додасть оголошенню популярності і ефект багаторазово підвищиться.
Збережіть або повідомте про порушення
Руслан Нестеренко
- На сайті з: 04.12.2024
- Активність: 29.09.2025
Поради з безпеки
- Познайомтеся з продавцем в публічному місці
- Перевірте товар перед покупкою
- Сплачуйте лише після того як переконаєтеся, що товар відповідає опису і вашим вимогам
- Бажано провести операцію при свідках
Інші оголошення від
Руслан Нестеренко
QR-код сторінки
Поділіться QR-кодом в соціальних мережах, чатах, месенджерах щоб ваші знайомі, потенційні клієнти відкрили ваше оголошення на своїх смартфонах.
Казахстан
Україна
Узбекистан
Молдова