Бізнес послуги в Дніпропетровську
Продам бизнес, Днепропетровск, Украина в Дніпропетровську
- 08.08.2013, 13:38
- Україна, Дніпропетровськ
Просмотров : 72
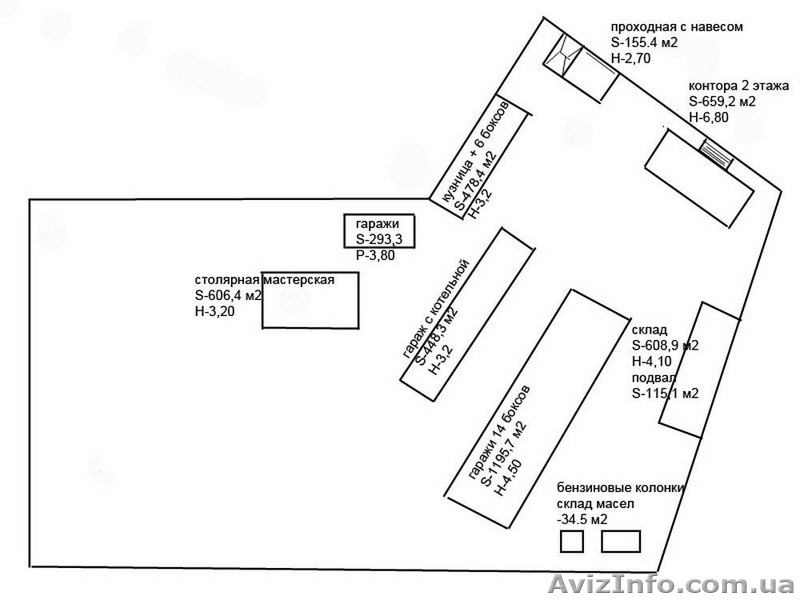
Действующий бизнес в г.Никополь. Комплекс (5877, 9кв.м.) строений состоит из производственной базы (4622, 4 кв.м.) и растворобетонного узла (1255, 5 кв.м.).
Производственная база (4622, 4 кв.м.) расположена на земельном участке 1, 6 га. с твердым покрытием (возможность расширения до 4, 1 га.), ограждена ж/б забором по периметру. На территории базы расположены АБК – 659, 2 кв.м., проходная с навесом, склады, гаражи, котельная, кузница, столярная мастерская, газовый котел 50 кВт (отопление АБК, проходной), электроэнергия: ТП – 1000 кВт., насосная, сливная яма.
Полигон ЖБИ с. Каменское (1255, 5 кв.м.), полигон – 0, 24 га. с краном. Рядом с рбу проходит ж/д ветка. Диспетчерская, бытовые помещения, склады, боксы, арматурный цех, компрессорная, галерея для подачи гравия и песка, РБУ с емкостями для хранения цемента на 300 куб.м.
Схема приобретения: покупка корпоративных прав.
На балансе спец. и автотехника. Основная деятельность: Будівництво будівель і інших споруд. Діяльність у сфері інжинірингу. Монтаж металевих конструкцій. Виробництво дере'яних будівельних конструкцій та столярних виробів. Виробництво готових для використання бетонних сумішей.
Інформація про компанію, яка розмістила оголошення:
Дії з оголошенням #940829
Поділіться з друзями і знайомими
Поділіться оголошенням Продам бизнес, Днепропетровск, Украина з друзями, знайомими, потенційними клієнтами, використовуйте для цього соціальні мережі, месенджери. Це додасть оголошенню популярності і ефект багаторазово підвищиться.
Збережіть або повідомте про порушення
Юрьевна Алина
- На сайті з: 08.08.2013
- Активність: 08.08.2013
- Днепропетровск
Поради з безпеки
- Познайомтеся з продавцем в публічному місці
- Перевірте товар перед покупкою
- Сплачуйте лише після того як переконаєтеся, що товар відповідає опису і вашим вимогам
- Бажано провести операцію при свідках
Інші оголошення від
Юрьевна Алина
- 08.08.2013, 13:33
QR-код сторінки
Поділіться QR-кодом в соціальних мережах, чатах, месенджерах щоб ваші знайомі, потенційні клієнти відкрили ваше оголошення на своїх смартфонах.
Казахстан
Україна
Узбекистан
Молдова